Auto RDX Studio
Delhi | Car Detailing Studio | Retail Design
Located in the bustling Wazirpur Industrial Area of New Delhi, the Auto RDX Experience Centre is a 6000 sq. ft. flagship space designed to redefine how automotive enthusiasts engage with car detailing services and premium accessories. As the vision of Studio Designopedia and requirement of our client, we created a multi-functional, immersive environment that blends industrial precision with eclectic lifestyle luxury.




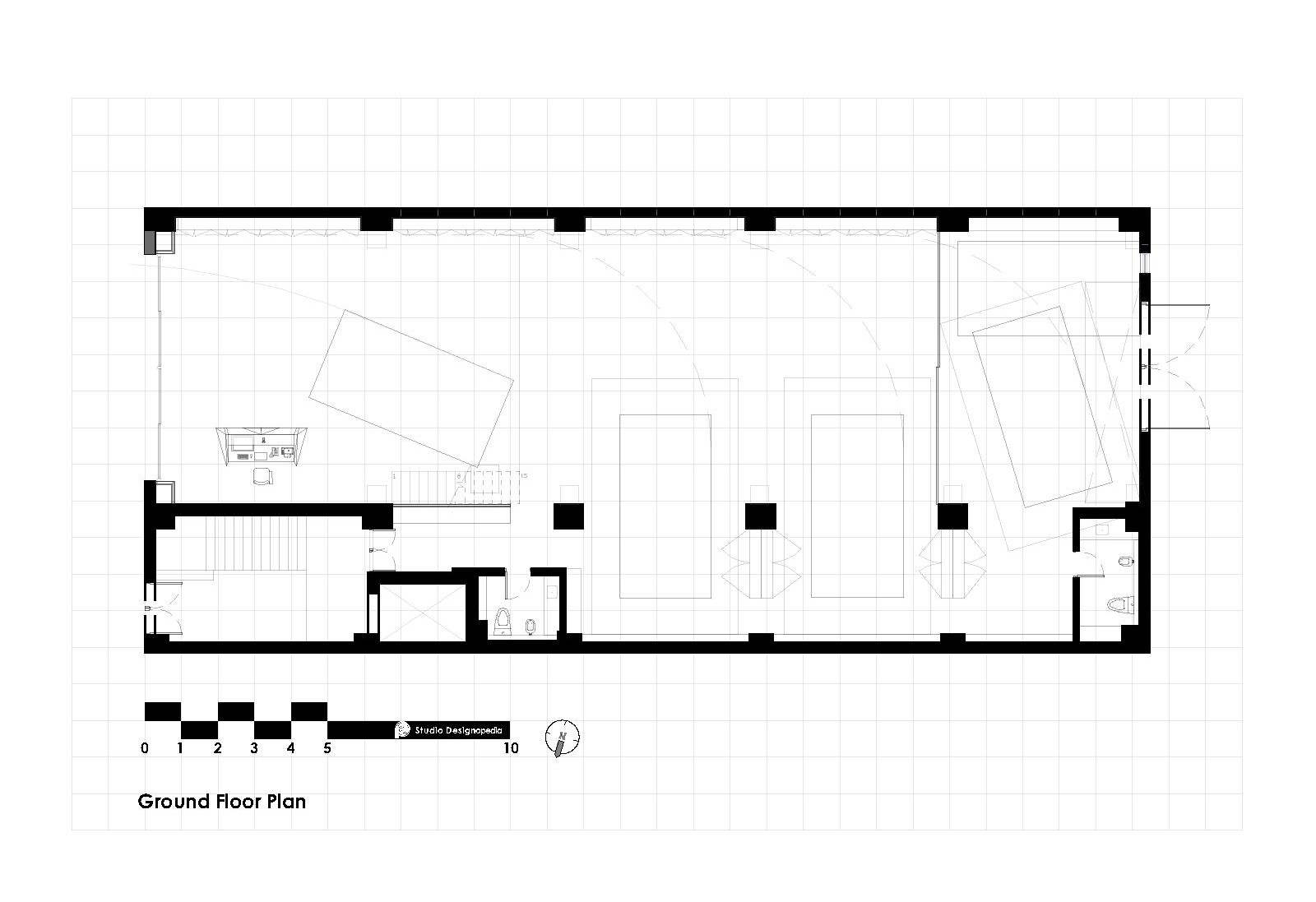
Ground Floor – Envisions to showcase the functional precision with brand presence
* Three detailing bays and a dedicated washing zone are accessed through a central reception area, designed with a sculptural desk inspired by contemporary automotive design language.
* The double-height washing bay features a graffiti wall that adds vibrancy and connects visually with the upper level.
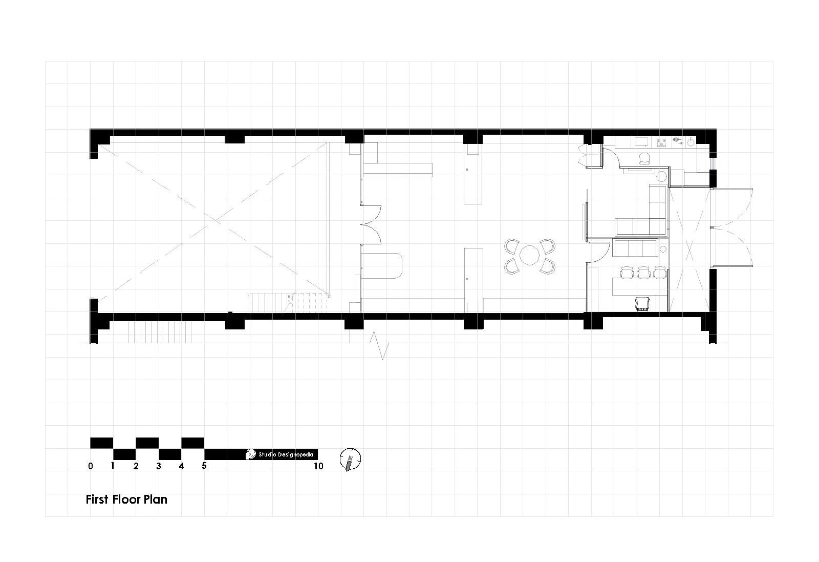
Mezzanine Floor – Retail Experience & Lounge Culture
* A metal mezzanine structure was introduced to carve out space for a retail and product experience center, complete with a coffee bar lounge.
* The entry to the mezzanine is marked by a glass door and a floating staircase, creating a sense of openness and vertical movement.
* The modular display system along the periphery is custom-designed to reflect the brand’s identity and accommodate evolving product lines. It’s flexible, scalable, and adaptable for future retail expansions.
Material Palette & Brand Integration-The overall design language is rooted in industrial grey tones, contrasted with Auto RDX’s signature blue and pops of orange through freestanding furniture elements. The space is a balance of raw textures and refined finishes, echoing the duality of performance and luxury in automotive culture.
* Speaker display units were custom-built using mild steel and wood, reflecting the brand’s unique form language.
* The right wall features a metal mesh system with adjustable mobile racks, engineered for dynamic product presentation. This system is scalable and intended to be replicated across future retail stores, exhibitions, and brand corners.
Architectural Highlights
* 6-meter high glass facade for a bold, transparent entrance
* Floating staircase as a sculptural element
* Double-height graffiti wall for visual continuity
* Modular retail systems for product flexibility.
Coffee Bar Table – A Sculptural Welcome Inspired by Automotive Heritage
Positioned at the forefront of the retail experience zone, the coffee bar table was designed to serve as a warm and stylish welcome for guests entering the mezzanine level. Drawing inspiration from retro muscle car design language, the table combines high-grill wooden textures with a bold, sculptural presence.
The bar stools feature quilted, wrinkled leather upholstery, reminiscent of vintage car interiors, adding a tactile richness and nostalgic charm to the space. This fusion of automotive aesthetics and contemporary materiality creates a unique lounge experience that aligns seamlessly with the brand’s identity and the overall spatial narrative.
Ground Floor –
* A finished car handover zone and product display wall flank the left side, offering visibility and retail engagement.
* A folding and sliding partition system ensures a dust-free environment, maintaining operational efficiency without compromising aesthetics.
More
Aristham Homeopathy Clinic
HOSPITALITY | INTERIORS
Informage terrafence Office
CORPORATE | INTERIORS